OKTAVA
Year: 2017-2018
Location: Tula, Russia
Space: 10 000 м²
Status: completed
Team: Delo studio in collaboration with Orchestra Design


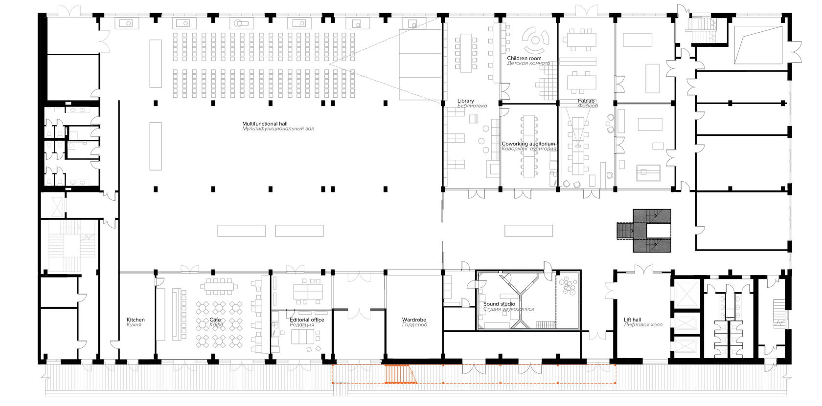
Creative industrial cluster "Octava" is a public project, occupying one of the buildings of the operating sound equipment factory of the same name in the center of Tula.




There is a recreational zone in the courtyard of the cluster that includes an event space with a stage, some street cafes, and a sports ground. Entrance area is accentuated by a bright orange staircase with a canopy. It leads to a terrace with an open bar and provides direct access to the second floor of the cluster occupied by the Machine Tool Museum.


Inside the building there are event halls, a library, a professional recording studio, a museum, the Higher Technical School, a cafe and small production offices. The cluster was created as an environment that facilitates the creation and development of technical startups.

Interiors retain the aesthetics of factory spaces - the main materials used are concrete, metal, plywood and translucent glass blocks, typical of Soviet industrial architecture.
OKTAVA
Year: 2017-2018
Location: Tula, Russia
Space: 10 000 м²
Status: completed
Team: Delo studio in collaboration with Orchestra Design


Creative industrial cluster "Octava" is a public project, occupying one of the buildings of the operating sound equipment factory of the same name in the center of Tula.
There is a recreational zone in the courtyard of the cluster that includes an event space with a stage, some street cafes, and a sports ground. Entrance area is accentuated by a bright orange staircase with a canopy. It leads to a terrace with an open bar and provides direct access to the second floor of the cluster occupied by the Machine Tool Museum.

Inside the building there are event halls, a library, a professional recording studio, a museum, the Higher Technical School, a cafe and small production offices. The cluster was created as an environment that facilitates the creation and development of technical startups.
Interiors retain the aesthetics of factory spaces - the main materials used are concrete, metal, plywood and translucent glass blocks, typical of Soviet industrial architecture.