Year: 2021
Location: St. Petersburg, Russia
Space: 125 m²
Status: completed
Team: Delo studio — Arsenii Brodach, Ivan Novikov

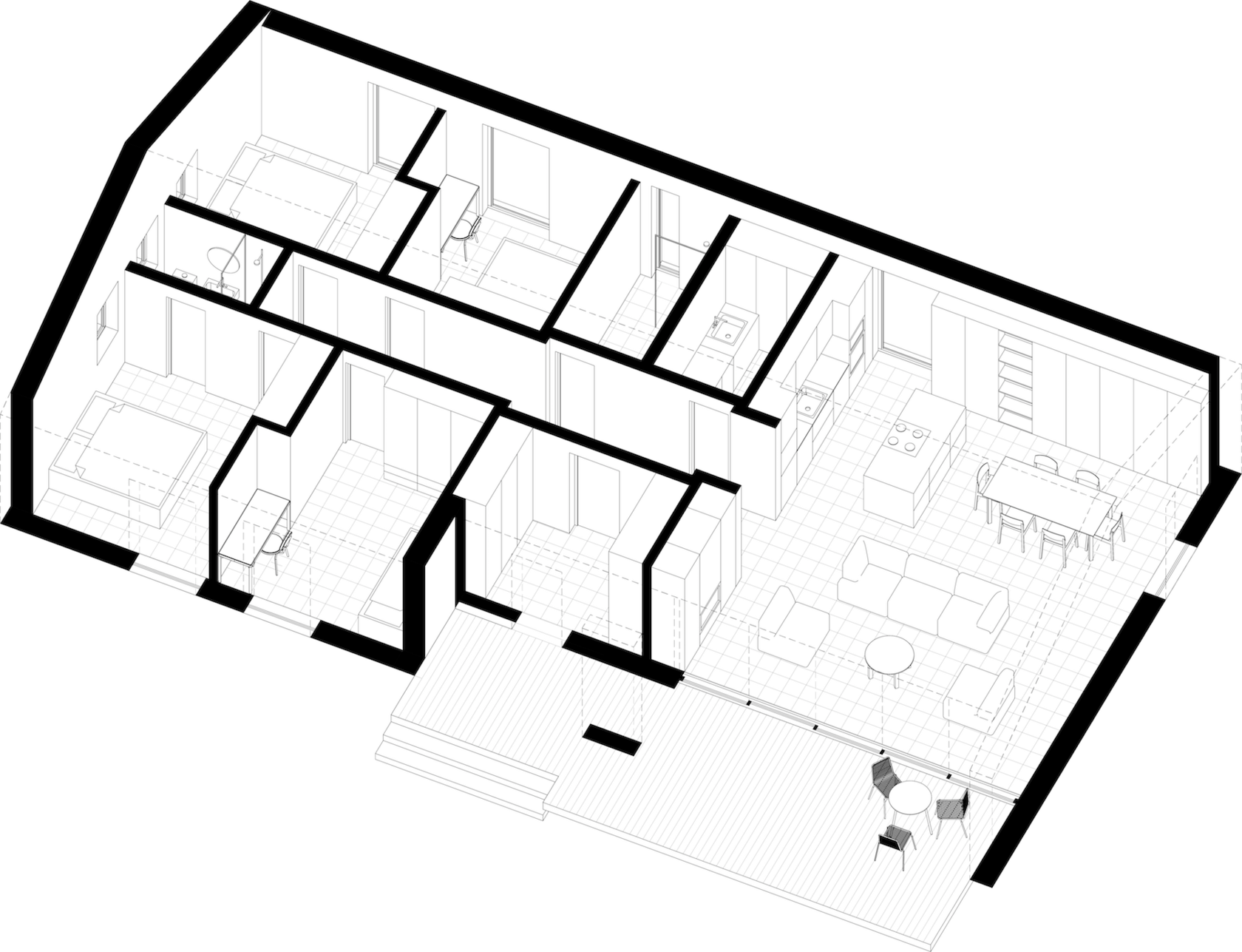
Serially-produced frame house total area of 125 m² with an open terrace.

The house is built on a site according to frame technology using pre-prepared elements. The lightweight structure is erected on any foundation. The house is heat-insulated for living in winter.

The space of the house is used with maximum efficiency. House contains four bedrooms, a kitchen-living room, two bathrooms, a boiler room and a spacious entrance hall.

The terrace can have any shape and size.

The layout can be mirrored in any direction, and the windows can be positioned depending on the cardinal points, the desired view and the access way.
9.5 m
17.8 m
4.8 m
3.2 m
0
1
2
3
4
5
6
9
7
10
11
- 0,5 m
The house has a simple, easy-to-build and reliable structure.

During construction, only high-quality, environmentally friendly materials are used. The house is designed taking into account the standard sizes of materials and almost no wasteleft during its construction. This optimizes its cost and saves natural resources.
DELO HOUSE 4

12
8
7. Hall
8. Corridor
9. Bedroom
10. Bedroom
11. Entarance room
12. Terrace
6.4 m²
6 m²
12.3 m²
10.4 m²
6.1 m²
28.5 m²
12.3 m²
10.4 m²
5.4 m²
5.4 m²
46.7 m²
2.8 m²

125 m²
185 m²

17.8 m х 9.5 m х 4.8 m
1. Bedroom
2. Bedroom
3. Bathroom
4. Boiler room
5. Living room
6. Bathroom

Usable floor area:
Built-up area:

Dimensions (L х W х H):
- 0,5 m
DELO FURNITURE USED IN THE PROJECT
BRO
Wooden chair
STIL
Three seater sofa
KROOGSTER
Coffee table
STOLSTER
Table
YO
Outdoor chair with armrests
DELO HOUSE 4
Year: 2021
Location: St. Petersburg, Russia
Space: 125 m²
Status: completed
Team: Delo studio — Arsenii Brodach, Ivan Novikov

Serially-produced frame house total area of 125 m² with an open terrace.

The house is built on a site according to frame technology using pre-prepared elements. The lightweight structure is erected on any foundation. The house is heat-insulated for living in winter.
The space of the house is used with maximum efficiency. House contains two bedrooms with built-in wardrobes, a bathroom with a bath, a spacious entrance hall and a kitchen-living room.

The terrace can have any shape and size.

The layout can be mirrored in any direction, and the windows can be positioned depending on the cardinal points, the desired view and the access way.
1. Bedroom 12.3 m²
2. Bedroom 10.4 m²
3. Bathroom 5.4 m²
4. Boiler room 5.4 m²
5. Living room 47 m²
6. Bathroom 2.8 m²
7. Hall 6.4 m²
8. Corridor 6 m²
9. Bedroom 12.3 m²
10. Bedroom 10.4 m²
11. Entrance hall 6.1 m²
12. Terrace 28.5 m²

Usable floor area: 125 m²
Built-up area: 185 m²

Dimensions (L х W х H):
17.8 m х 9.5 m х 4.8 m


The house has a simple, easy-to-build and reliable structure.

During construction, only high-quality, environmentally friendly materials are used. The house is designed taking into account the standard sizes of materials and almost no wasteleft during its construction. This optimizes its cost and saves natural resources.
DELO FURNITURE USED IN THE PROJECT