DELO HOUSE 3
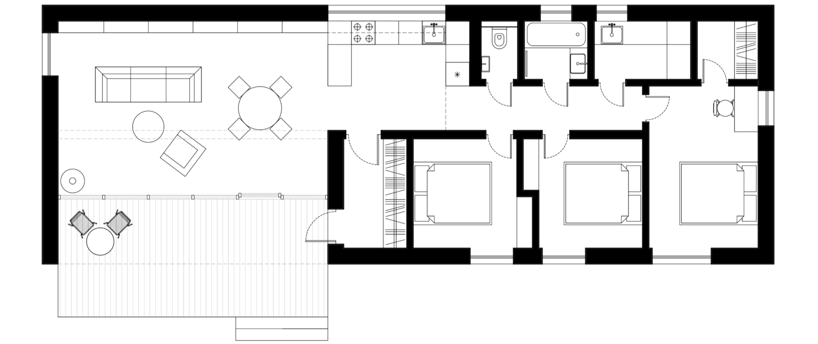
6.6 m
18.6 m
7. Corridor
8. Bedroom
9. Bedroom
10. Bedroom
11. Entrance hall
12. Terrace
5 m²
11.5 m²
7.9 m²
7.9 m²
4.5 m²
20.6 m²
4.5 m
3.1 m
0
1
2
3
4
5
6
7
9
8
10
11
- 0,5 m
12
1. Living room
2. Kitchen
3. Toilet
4. Bathroom
5. Boiler room
6. Wardrobe

Usable floor area:
Built-up area:

Dimensions (L х W х H):
30.5 m²
10.7 m²
1.25 m²
2.4 m²
3.65 m²
2.3 m²

87.5 m²
132 m²

18.6 m х 6.6 m х 4.5 m
Year: 2021
Location: St. Petersburg, Russia
Space: 108 m²
Status: completed
Team: Delo studio — Arsenii Brodach, Ivan Novikov

Serially-produced frame house total area of 108 m² with an open terrace.


The house is built on a site according to frame technology using pre-prepared elements. The lightweight structure is erected on any foundation. The house is heat-insulated for living in winter.

The space of the house is used with maximum efficiency. House contains two bedrooms with built-in wardrobes, a bathroom with a bath, a spacious entrance hall and a kitchen-living room.

The terrace can have any shape and size.
The layout can be mirrored in any direction, and the windows can be positioned depending on the cardinal points, the desired view and the access way.
The house has a simple, easy-to-build and reliable structure.

During construction, only high-quality, environmentally friendly materials are used. The house is designed taking into account the standard sizes of materials and almost no wasteleft during its construction. This optimizes its cost and saves natural resources.
DELO FURNITURE USED IN THE PROJECT
MEGAKROOG
Table
BRO
Wooden chair
YO
Outdoor chair with armrests
DELO HOUSE 3
Year: 2021
Location: St. Petersburg, Russia
Space: 108 m²
Status: completed
Team: Delo studio — Arsenii Brodach, Ivan Novikov

Serially-produced frame house total area of 108 m² with an open terrace.

The house is built on a site according to frame technology using pre-prepared elements. The lightweight structure is erected on any foundation. The house is heat-insulated for living in winter.
The space of the house is used with maximum efficiency. House contains two bedrooms with built-in wardrobes, a bathroom with a bath, a spacious entrance hall and a kitchen-living room.

The terrace can have any shape and size.
1. Living room: 30.5 m²
2. Kitchen: 10.7 m²
3. Toilet: 1.25 m²
4. Bathroom: 2.4 m²
5. Boiler room: 3.65 ²
6. Wardrobe: 2.3 m²
7. Corridor: 5 m²
8. Bedroom: 11.5 m²
9. Bedroom: 7.9 m²
10. Bedroom: 7.9 m²
11. Entrance hall: 4.5 m²
12. Terrace: 20.6 m²

Usable floor area: 87.5 m²
Built-up area: 132 m²

Dimensions (L х W х H): 18.6 m х 6.6 m х 4.5 m
The layout can be mirrored in any direction, and the windows can be positioned depending on the cardinal points, the desired view and the access way.

The house has a simple, easy-to-build and reliable structure.

During construction, only high-quality, environmentally friendly materials are used. The house is designed taking into account the standard sizes of materials and almost no wasteleft during its construction. This optimizes its cost and saves natural resources.
DELO FURNITURE USED IN THE PROJECT